
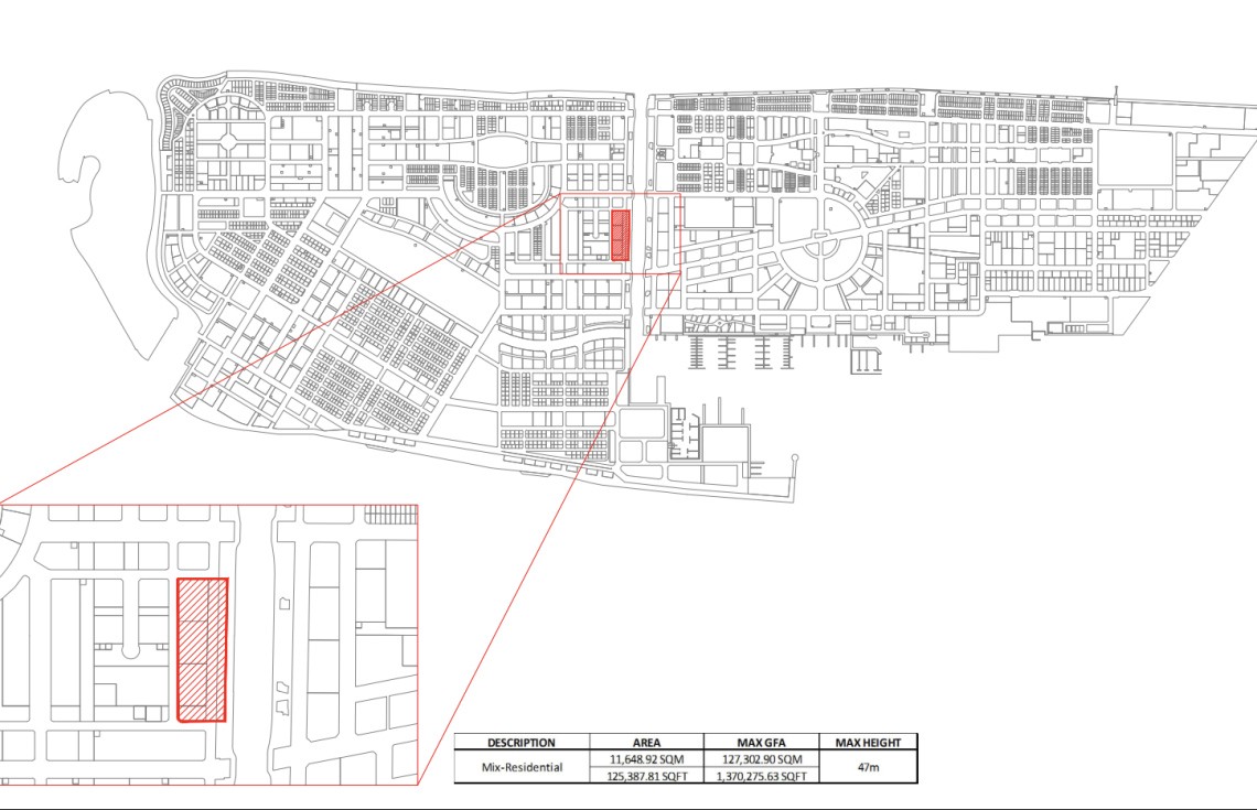
އެޗްޑީސީން ވަނީ އެކަމަށް ޝައުގުވެރިވާ ފަރާތްތަކުން އެކްސްޕްރެޝަން އޮފް އިންޓްރެސްޓް (އީއޯއައި) މިމަހުގެ 24 ވަނަ ދުވަހުގެ 12:00 ގެ ކުރިން ހުށަހެޅުމުގެ ފުރުސަތު ހުޅުވާލައިފަ އެވެ.އެޗްޑީސީން ބުނި ގޮތުގައި އެ މަޝްރޫއު ކުރިއަށް ގެންދިއުމަށް ފޭސް ދޭއްގެ 125،387 އަކަފޫޓުގެ ބިމެއް ވަނީ ހަމަޖައްސައިފަ އެވެ. އެތަނުގައި 47 މީޓަރު އުހަށް އިމާރާތް ކުރެވޭނެ އެވެ.މި މަޝްރޫއު ކުރިއަށް ގެންދަން ނިންމާފައި ވަނީ ޑިވެލޮޕްމެންޓް ސޭލްސް ރައިޓްސް މޮޑެލްއަށެވެ. ނަމަވެސް، އެހެން މޮޑެލްތަކުގެ ދަށުން މަޝްރޫއު ހިންގަން ވެސް އީއައިއޯ ހުށަހެޅިދާނެ ކަމަށް އެޗްޑީސީން ބުންޏެވެ.އަދި މަޝްރޫއު ހިންގަން އެއް ފަރާތަށް ވުރެ ގިނަ ފަރާތްތަކުން އީއައިއޯ ހުށަހަޅައިފި ނަމަ، ކުރިއަށް ދާނީ އެޗްޑީސީގެ މާސްޓާ ޕްލޭނާއި ތަސައްވުރާ އެންމެ އެއްގޮތް އީއައިއޯއަކާ އެކީގަ އެވެ.